Разбираемся с функциями устройств
Вам потребуется соединить два устройства: минитаймер и основной блок сигналки. К сожалению, точки подключения сигнализации в первом из них отсутствуют. Создать такую точку можно самому, но прежде изучите то, как подогрев включается «штатно».
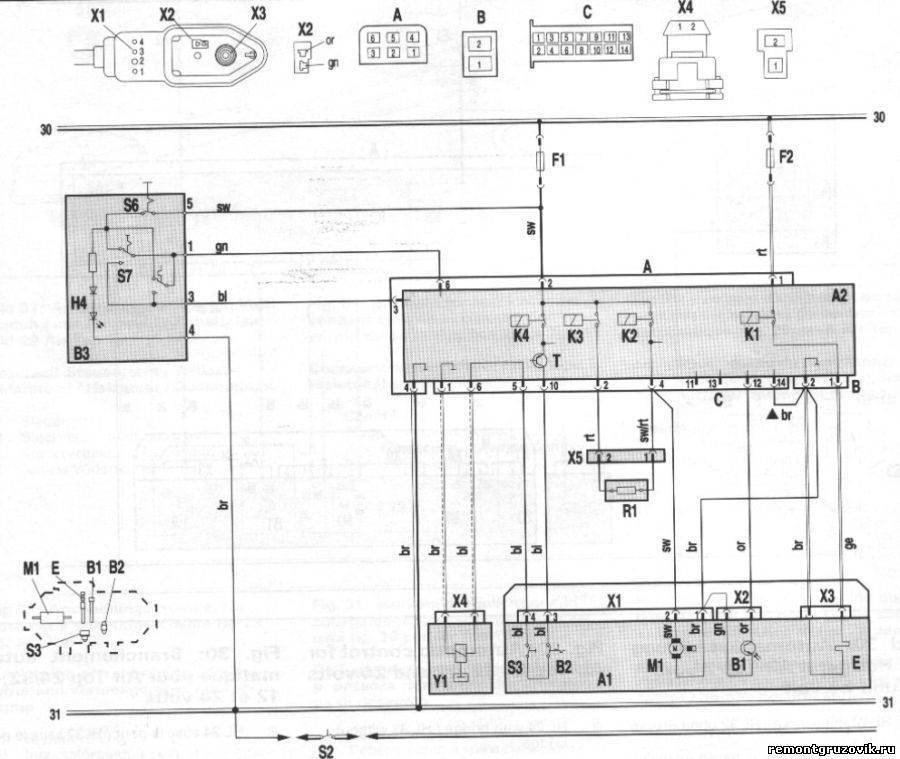
Подключение минитаймера к выходу сигналки
Схема, рассмотренная выше, реализуется просто. Но у нее есть недостаток – придется разбирать модуль таймера. Другие варианты подключения тоже существуют.
Вариант, рекомендуемый фирмой Starline
Здесь желто-синий и зелено-красный провода – это дополнительные выходы. Наша схема, в свою очередь, предусматривает подключение к одному дополнительному выходу (к любому), при этом она не содержит реле.
Описание и назначение автономного подогревателя Вебасто
Подогреватель от немецкого производителя Webasto представляет собой устройство, обеспечивающее повышение температуры двигателя для облегчения его запуска. Для этой цели автономный отопитель производит отбор топлива из бака автомобиля, которое сжигается в камере сгорания. Образующее тепло нагревает антифриз в теплообменнике аппарата, который подключен к системе охлаждения автомобиля.
Встроенный насос обеспечивает циркуляцию жидкости по малому контуру и нагревает силовой агрегат и элементы системы питания, установленные на нем. В результате образуются благоприятные условия для запуска двигателя. Самостоятельно установить Вебасто на автомобиль вполне возможно при условии точного следования инструкции производителя.
Плюсы от использования Вебасто
Пользуясь устройством, можно без опасений запускать мотор в любую погоду, даже при температуре ниже -20 градусов, так как топливо поступает в мотор в разогретом виде. Экономится много времени, ведь разогреть топливо можно дистанционно.
Прогревается салон, что положительно влияет на здоровье водителя. Бережётся силовая установка, тратящая при холодном запуске ресурс, равный 100–200 километров пробега. Также снижается количество отходов, что делает эту систему более безопасной для окружающей среды, чем прогрев мотора.
Также прогревать двигатель затратнее, так как неразогретая система тратит больше топлива. Используя Вебасто, автомобиль начинает работу на разогретом режиме, что более экономично.

Комплектация оборудования
Горение прекращается, отключается топливный насос, а нагнетатель воздуха и циркуляционный насос подогревателя работают еще некоторое время: производится продувка, в ходе которой камера сгорания подогревателя охлаждается, после чего нагнетатель воздуха и циркуляционный насос автоматически отключаются. На стендах наработки на отказ при работе с предельными нагрузками имитируется эксплуатация подогревателя, эквивалентная 15 годам. Благодаря этому даже на сильном морозе автомобиль заводится очень быстро, и ресурс двигателя существенно экономится.
Мне пришлось поставить воздушный патрубок вместе с резонатором от тойоты карины —й серии, так как родной резонатор в родном патрубке смещен ниже и сам немного другой формы — выступает вниз, упирается в подогреватель.
Там тааааакая дыра, если открутить уплотнение конечно : kaw Дыры оставлять не будем, делаем красиво, протягиваем через гофру. Радиус действия брелка составляет около 1 км, потому, даже находясь в офисе, вы можете прогреть машину к моменту предполагаемой поездки.
Обозначения на корпусе диода Схема подключения вопросов не вызывает, а вот с программированием придется повозиться.
Через некоторое время подогреватель начал гудеть, выхлоп стал горячим.
Далее понадобится снять топливный бак, после чего производится установка топливозаборника и его подключение. Рекомендуется монтировать систему выпуска отработанных газов защищённой от брызг.
А силовые пришлось потом на полметра наращивать: kaw Предохранители с реле, опять же очень удачно, расположились на имеющиеся штатные места вместо блока управления ABS возле блока управления двигателем за бардачком.
Webasto пробный пуск

Конструкция и принцип функционирования
Конструктивно Вебасто представляет собой компактный прибор, вес которого составляет несколько килограммов. Находится он под капотом транспортного средства, система питания соединяется с автомобильной, а охлаждающий контур – с контуром охлаждения силовой установки.

За управление отвечает электронный модуль, подключенный к бортовой автомобильной сети.
Принцип работы устройства можно описать следующим образом:
- Активируется подача топлива из бака к собственным камерам сгорания подогревателя. Это позволяет повысить температуру охлаждающей жидкости, находящейся внутри теплообменника.
- Активируется циркуляционный насос, благодаря которому подогретая жидкость поступает к мотору. Она нагревает и непосредственно двигатель, и радиатор, обслуживающий салон.
Рекомендуем: Как поменять масло в гидроусилителе руля
Рабочий процесс можно полностью автоматизировать, чтобы процесс активировался датчиками, реагирующими на понижение температуры окружающего воздуха, или таймером.
В плане потребления топлива система экономична, средний расход составляет 0.5 литра в течение часа. Полный прогрев автомобиля при таком расходе и температуре воздуха в минус 20 градусов занимает всего четверть часа.
Познавательное видео про предпусковые подогреватели, их устройство, работу и функции на примере Webasto:
Как управлять и пользоваться Вебастой
Управление устройством достаточно простое, вам всего лишь необходимо выбрать наиболее рациональный способ подачи сигнала на включение. Запуск может производиться с помощью:
- таймера;
- пульта дистанционного управления;
- GSM-модуля.
Таймер позволяет задать время включения и продолжительность нагрева. Таким образом, автомобиль будет готов к поездке к моменту прихода владельца на стоянку.
Для включения оборудования на расстоянии (до 500-1000 метров) используется пульта дистанционного управления. Пуль дает возможность запускать Вебасту в любое время.
GSM-модуль не только включает систему, но и контролирует ее работу посредством смартфона. Модуль не зависит от места нахождения автомобиля и не имеет ограничений по времени запуска. Кроме того, водитель получает возможность контролировать режим прогрева и график работы.
Есть ряд причин, по которым следует устанавливать Webasto совместно с автозапуском. Читайте об этом в статье: «Вебасто+Автозапуск». Из статьи Вы узнаете 10 причин, почему необходимо устанавливать Вебасто и подключать его к сигнализации с автозапуском. Для этого наилучшим образом подходят автосигнализации Старлайн и Пандора, у которых есть функция управления предпусковыми подогревателями.
Схема отопителя, предпускового нагревателя/догревателя системы отопления ГАЗель Next.
Схема отопителя, предпускового нагревателя/догревателя системы отопления ГАЗель Next.
Особенностью работы дизельного двигателя является неспособность поддерживать высокую рабочую температуру при работе на оборотах холостого хода, а также при малой нагрузке. Особенно сильно это проявляется в зимнее время года. В следствии чего ухудшаются параметры двигателя (повышенный расход топлива и износ узлов трения) и падает эффективность системы отопления салона. Для устранения этих недостатков, а также для облегчения запуска двигателя в холодное время, применят предпусковой нагреватель/догреватель системы отопления.
Устройство нагревателя/догревателя.
1 – забор воздуха; 2 – нагнетатель воздуха; 3 – выпускной жидкостной патрубок; 4 – штифт накаливания/датчик пламени; 5 – испарительная прокладка; 6 – разъёмы; 7 – блок управления с датчиками температуры; 10 – теплообменник; 11 – камера сгорания; 12 – Выход выхлопных газов; 13 – забор топлива; 14 – Циркуляционный насос; 15 – заборный жидкостной патрубок; 16 – топливный дозирующий насос.
После включения отопителя начинает работать нагнетатель воздуха (2) и продувает камеру сгорания (11) и выхлопную систему (12). Одновременно блок управления (7) тестирует все электрические компоненты и датчики. Далее, если нет ошибок, топливо из бака поступает в камеру сгорания (11) при помощи топливного насоса (16) и воспламеняется с помощью штифта накала (4). Газы после сгорания воздушно-топливной смеси выходят через выхлопную систему с пламегасителем. При этом циркуляционный насос (14) прогоняет охлаждающую жидкость автомобиля через теплообменик (10) отопителя, разогревая её. Среднее время цикла работы отопителя при -20 градусах – 40 мин.
На Газеле Next догреватель включается (при работающем двигателе и системе отопления) кнопкой на передней панели. Догреватель работает в автоматическом режиме. Нагревает охлаждающую жидкость до температуры 80… 85˚ C. Рекомендуется включать при температуре окружающего воздуха +5˚ C и ниже.
Выключатель догревателя.
1 – выключатель догревателя.
Режим предпускового нагревателя включается с помощью таймера или пульта дистанционного управления. На таймере устанавливается момент запуска двигателя и продолжительность работы.
Пульт управления.
1,2 – навигация; 3 – включения автономного нагревателя в режиме таймера; 4 – включение подогревателя; 5 – выбор режима работы подогревателя.
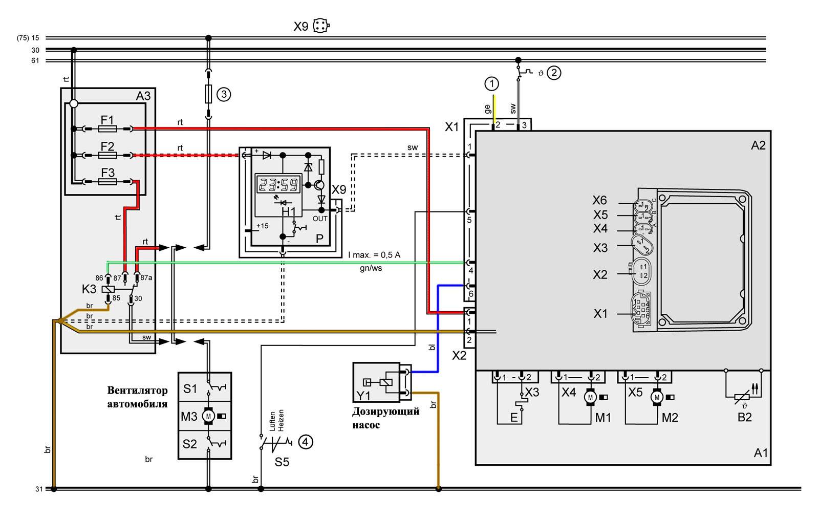
Электрическая принципиальная схема отопителя, предпускового нагревателя/догревателя системы отопления.
1 – пульт отопителя; 2 – переключатель отопителя; 3 – реле отопителя; 4 – блок реле и предохранителей в салоне; 5 – резистор; 6 – вентилятор; 7 – моторедуктор заслонки «ноги-грудь»; 8 – моторедуктор заслонки «тепло-холод»; 9 – моторедуктор заслонки рециркуляции; 10 – электрокран; 11 – генератор; 12 – выключатель догревателя; 13 – топливный насос; 14 – реле включения догревателя; 15 – диагностический разъём; 16 – пульт управления; 17 – электронасос; 18 – догреватель; F42 – блок реле и предохранителей в салоне; F44 – блок реле и предохранителей под капотом; XP 25/229-С – колодка соединения жгута 25 (по кабине) со жгутом 229 (по панели) серого цвета; ХР 25/229-Ч – колодка соединения жгута 25 (по кабине) со жгутом 229 (по панели) чёрного цвета.
источник
Информация об автономном обогреве
Способы прогрева автомобиля
Для обеспечения комфортного микроклимата в салоне машины чаще всего используются автомобильные печки. Однако у них есть существенный недостаток – они функционируют только тогда, когда двигатель автомобиля находится в рабочем режиме.
Однако это возможно не всегда, а потому в некоторых ситуациях водителю приходится мерзнуть, сетуя на неправильно выбранную одежду или обувь.
Альтернативой печке может стать электрообогреватель, однако и в этом случае есть нюансы. И самый главный заключается в том, что запас электроэнергии в автомобиле не бесконечен, и потому не всегда есть возможность расходовать заряд аккумулятора на обогрев.
Знакомая ситуация, не правда ли?
Выходом из такой ситуации являются автономные обогреватели автомобиля. Конечно, цена такого устройства выходит значительно большей, чем у стандартной печки, но и выгод от его эксплуатации предостаточно.
Кому будет полезен отопитель
В чем же заключаются эти выгоды?
Во-первых, автономный обогреватель создает в кабине автомобиля комфортную температуру сразу же после включения. Если с печкой мы бы услышали от водителя привычное «Потерпите, сейчас заведемся и нагреемся», то в случае с автономным теплогенератором мерзнуть не придется.

Установка аппарата в автобус
- Во-вторых, использование этого устройства обеспечивает предпусковой прогрев двигателя. Благодаря этому даже на сильном морозе автомобиль заводится очень быстро, и ресурс двигателя существенно экономится.
- Также стоит упомянуть о таких преимуществах как поддержание температуры в машине при длительной стоянке (дальнобойщики и ожидающие в очередях на таможню оценят), быстрый обогрев стекол, защита их от обмерзания и запотевания и т.д.
Исходя из этих преимуществ, устройства для обогрева от компании Webasto можно рекомендовать:
- Тем, кто не любит мерзнуть в салоне автомобиля, или семьям, которые часто возят в салоне автомобиля маленьких детей.
- Тем, кто подолгу стоит в пробках, очередях и т.д. В первую очередь это таксисты, курьеры, дальнобойщики, водители спецтехники и т.д.
- А также тем, кто старается уменьшить износ двигателя своего автомобиля и по максимуму реализовать его КПД.
Как самому установить вебасто?
Установка Вебасто в моторном отсеке
Если подробной инструкции по установке подогревателя вебасто именно на Вашу модель авто нет, то главной проблемой будет поиск места для монтажа самой важной части вебасто — котла. Нужно принимать в расчёт следующее:
ознакомьтесь с инструкцией по установке Webasto — в ней указано, как нужно правильно установить котёл вебасто – неправильное его положение приведёт к тому, что прибор не будет работать. Может быть, придется изготовить своими руками кронштейн для установки котла вебасто;
устройство не должно контактировать с подвижными деталями авто;
котёл располагайте так, чтобы было возможно подсоединение к нему шлангов, выхлопной трубы, фильтра;
шланги, ведущие к циркуляционному насосу, не должны перегибаться, тереться о подвижные детали и ограничивать работу механизмов. Кроме того, они не должны быть чересчур длинными;
топливная трубка должна быть установлена так, чтобы она не могла зацепиться за что-нибудь при движении или перетереться;
заранее определите место установки таймера в салоне
Обычно малые габариты и небольшой вес позволяют приклеить его на двухсторонний скотч;
постарайтесь провести трубки от подогревателя так, чтобы они могли подогревать топливопровод – это особенно важно, если вебасто работает на солярке;
решите, как будет производится забор топлива. На некоторых авто заводом-изготовителем предусмотрено место для врезки штуцера вебасто в крышку корпуса погружного бензонасоса
Длина трубки штуцера позволяет брать топливо со дна бака;
обеспечьте безопасную подачу топлива к подогревателю.
Установка Вебасто перед радиатором
Часто для установки предпускового подогревателя используют место, предназначенное для бачка омывателя под передним бампером или крылом, переставив бачок в другое место. На некоторых автомобилях удаётся «втиснуть» вебасто в подкапотное пространство – на панели, разделяющей моторный отсек и салон. Изготовив самодельный кронштейн, котёл подогревателя можно установить, воспользовавшись креплением левой опоры (подушки) двигателя (КПП). И, наконец, если Вы определились с компоновкой подогревателя, но продающиеся в комплекте с ним крепёжные элементы, трубки, шланги не позволят произвести монтаж, то придётся самостоятельно докупать требуемое. Например, зачастую штатные шланги для охлаждающей жидкости перегибаются, в таком случае уместно воспользоваться сантехническими трубными уголками подходящего диаметра.
Рекомендуем: Установка и подключение автомобильного сабвуфера к магнитоле и усилителю
Выставление климат контроля на отопителе
У отопителя есть автоматический режим или как его многие называют – климат контроль. При нем устройство работает и управляется не по максимально выставленной мощности, а исходя из окружающей и предустановленной температуры.
Чтобы запустить этот режим, необходимо одновременно нажать две верхние кнопки.
После этого высветится показание температуры. Кнопками вверх-вниз устанавливаете желаемое значение. Как работает вебаста в этом режиме?
Например вы выставили на дисплее 19С, и по достижении в гараже заданной температуры, отопитель будет автоматически поддерживать этот параметр, периодически снижая или увеличивая обороты и температуру выхлопа. Для вас это прямая экономия топлива.
Чтобы задать на приборе дату и время, нажимаете на верхнюю кнопку со звездочкой и правыми кнопками переключаете цифры (часы-минуты).
Зачем это нужно? А затем, что таким образом вы сможете запрограммировать временной интервал работы и включение устройства в свое отсутствие. Например, вы запланировали завтра подремонтировать машину после 17.00.
Установили включение отопителя на 15.00 и приходите в пять часов вечера в натопленное и теплое помещение, где спокойно занимаетесь именно ремонтом, а не тратите более получаса на растопку буржуйки.
Чтобы выставить режим таймера:
нажимаете клавишу звездочка
нажимаете несколько раз ОК, чтобы на экране дисплея высветился значок будильника
Изначально будет светиться надпись OF – отключено.
Переведите прибор в режим ON, нажав кнопку со стрелочкой вверх.
После этого ОК. У вас начнут моргать цифры. Делаете все как ранее, пока не появится нужное время включения.
После установки часов и минут, опять высвечивается будильник и моргающие цифры. Это будет настройка времени отключения. Порядок здесь тот же самый.
По окончании такого программирования, печка будет сама запускаться в определенное время и прогревать гараж без вашего участия. Чтобы сбросить настройки, опять нажмите кнопу со звездочкой, и переведите режим будильника из положения ON, в положение OF.
Использование системы
Видео инструкция по эксплуатации прибора откроет много интересных моментов:
- Блок предварительного подогрева топлива не должен подвергаться механическим воздействиям. Стоит позаботиться, чтобы в нем не оказалось жидкости или агрессивных сред.
- Не стоит запускать устройство в гараже, где отсутствует принудительная вытяжка.
- При появлении постороннего шума или запаха прибор рекомендуется выключить. Изъятие предохранителя позволит осуществить экстренное отключение.
- Инструкция по использованию Вебасто указывает, какое топливо предпочтительнее использовать, к чему и следует прислушаться.
- В профилактических мерах прибор запускается с показателем минимальной мощности при холодном моторе. Процедура проводится раз в месяц.
- Период беспрерывной работы – 60 минут.

Устройство Вебасто
Способы запуска
Как включить автономку, описано в инструкции, но не сложно догадаться, что существует всего три способа — через пульт управления в виде брелока, вмонтированным таймером, с мобильного устройства:
Вариант с брелоком обойдется где-то в 10 тысяч рублей. Радиус действия 1 км, что позволяет запустить прогрев заранее. Предварительная настройка позволяет установить точный промежуток времени, тогда температура будет держаться и обеспечит пусковые механизмы. Владельцы устройства отмечают, что управлять с помощью пульта удобнее, чем каждый раз устанавливать время таймера. О запуске просигнализирует сигнал на брелоке.
Таймер обойдется в три раза дешевле
Важно четко синхронизировать время на таймере с реальным. Программируется два критерия – время обогрева и запуска
Максимально возможный интервал 60 минут.
В случае с телефоном требуется установка GSM-блока. Сигнал отправляется на любое расстояние с любой точки. Устройство отреагирует на полученное сообщение от телефона. Можно подключить максимум пять номеров. А современное приложение позволит иметь полную картину состояния авто и устройства.
Настройка таймера
Таймер располагается в салоне, его применение позволяет экономить топливо. Настраивается с точностью до минуты, предполагает три возможных запуска. Существует несколько режимов и четкий алгоритм настройки:
- Чтобы установить время, воспользуйтесь кнопки « ».
- Для фиксации времени включения нажмите «set» и установите кнопками вперед или назад время.
- Удерживая set» и нажимая при этом « » удастся зафиксировать длительность работы, которая может составлять 10-60 минут.
Дистанционное управление
Управление с помощью пульта удобнее тем владельцам, которые постоянно ставят машину возле дома. Программировать таймер не так сложно, но многие водители просто забывают, как это делать, а вот с брелока достаточно нажать одну кнопку. Единственный недостаток дистанционного управления — радиопомехи и линии электропередач могут стать препятствием к передаче сигнала.
Предпусковые подогреватели Webasto Thermo Top Е/C/Р
С 01 сентября 2013 компания WEBASTO представляет автономный отопитель нового поколения мощностью 4кВт Thermo Top EVO 4.
Он заменит печь Webasto Thermo Top E.
Работа подогревателя регулируется автоматически электронным блоком управления, в зависимости от температуры охлаждающей жидкости в контуре переключающим его в режим полной (работает с максимальной мощностью), частичной (с половинной мощностью) нагрузки или регулировочной паузы (временное отключение).
Момент запуска, режим и продолжительность работы устанавливаются пользователем с помощью таймера и/ или систем дистанционного управления.
Программируемый таймер устанавливается в салоне автомобиля – на приборной панели или консоли. Можно запрограммировать до 3 моментов включения и продолжительность работы (10-60 мин) подогревателя: он автоматически включится в активированный момент и проработает установленное количество минут. Можно также включить или отключить подогреватель непосредственно – для этого на таймере имеется специальная кнопка. Для подключения “летнего режима” требуется установка переключателя “зима-лето” (опцион).
Для повышения гибкости использования подогревателя его можно дооборудовать системой дистанционного управления Telestart.
В сезоне 2006/2007 гг. “Webasto” представляет новейшую систему Telestart Т91. С компактного, выполненного в модном “хай-тек”-дизайне пульта подогреватель можно включить или отключить, а также установить, изменить или определить установленные продолжительность (10-120 мин) и режим (зима-лето) его работы с расстояния от 2 до 1000 м. Пульт имеет индикатор приема сигнала.
Система дистанционного управления Heating Time Management (HTM) T100 имеет таймер с индикацией текущего времени, с помощью которого можно запрограммировать момент не только включения подогревателя, как у Т91, но и а посадки в автомобиль, а также требуемый уровень комфортности в салоне (от 1 до 5). Исходя из температуры в салоне автомобиля, мониторинг которой осуществляет специальный датчик, система рассчитывает момент запуска и процесс работы подогревателя и включает его в нужный момент. Наряду с этим HTM T100 имеет все функции системы WebastoTelestart Т91.
С сезона 2007 г. пульт НТМ Т100 можно подобрать под цвет автомобиля – система поставляется с брелками стандартного серебристого, а также красного, желтого и синего цветов.
Система ThermoCall – идеальный вариант для гибкого графика поездок по городу. Стандартная версия WebastoThermo Call Сomfort позволяет включить или отключить подогреватель, а также установить, изменить или определить установленные продолжительность (10-120 мин) и режим (зима-лето) его работы с любого телефона с тоновым набором (если автомобиль находится в зоне покрытия сети). Оснащена удобным русскоязычным голосовым меню. “Люксовая” версия WebastoThermo Call Locate дополнительно оснащена системой определения координат с помощью GPS-позиционирования.
Можно также сочетать программирование с таймера и дистанционное управление.
Базовая модель серии WebastoThermo Top – Thermo Top С отопительной мощностью 5 кВт. В климатических условий нашей страны это оптимальный выбор для большинства легковых автомобилей, а также кабин грузовых микроавтобусов. Для легковых автомобилей малого и компактного класса (с небольшим салоном и объемом двигателя до 1,9 л), умеренного климата, а также задач прогрева исключительно двигателя (в т.ч. и в холодных регионах) подходит “бюджетный” подогреватель WebastoThermo Top Е отопительной мощностью 4 кВт.
В дополнение к WebastoThermo Top С как опция поставляется специальный комплект дооборудования, позволяющий оптимизировать режим прокачки горячей жидкости и таким образом обеспечить ускоренный прогрев салона и лобового стекла.
Установка подогревателей WebastoThermo Top значительно упрощена благодаря их компактности, широкому диапазону установочных положений, минимальному числу подключаемых коммуникаций и водостойким штекерным разъёмам, позволяющим устанавливать их и в “проблемных” местах.























































