Постройка рамы
Прежде чем приступить к строительству снегохода, вначале потребуется выбрать материал. Проще всего самодельную раму сделать из деревянных брусков. Получится очень лёгкая и довольно прочная конструкция, которая считается самой дешёвой и наиболее простой в изготовлении. Для этого понадобятся:
- Деревянные бруски.
- Листовое железо.
- Ножницы по металлу.
- Дрель и свёрла.
- Ручная пила.
- Болты и гайки.
Преимущества строительства такой конструкции бесспорны. В случае поломки деревянную модель будет нетрудно отремонтировать вдали от населённого пункта. В лесу легко найти подручный материал, который можно применить для ремонта. Но главным достоинством считается то, что этот снегоход редко проваливается под лёд и не тонет в воде.
Деревянная конструкция
Известно, что бруски и доски из древесины не обладают особой прочностью в местах их
соединения. Поэтому перед началом строительства необходимо сделать дополнительные уголки из металла. Для этого берут листовое железо и вырезают ножницами квадратные пластины по ширине брусков. В них рулеткой размечают места под болты, а затем дрелью сверлят четыре отверстия. После этого пластины сгибают пополам строго под 90 градусов. Это будут отличные приспособления для прочного скрепления деревянных брусков в углах самодельной рамы.
Обычно приступают к строительству после того, как сделают чертёж с точными размерами. И уже по ним ножовкой отрезают четыре бруска, а в углах дрелью сверлят отверстия для болтов. Затем их кладут на ровную поверхность пола в виде правильного прямоугольника. К местам соединения прикладывают металлические уголки, вставляют болты и накрепко затягивают гайками.
Для крепления двигателя и гусеницы на раму устанавливают дополнительно ещё две перекладины из брусков с отверстиями под болты на концах. Но перед этим вначале изготавливают уголки для крепления. Их вырезают из листов железа треугольной формы и сверлят отверстия в углах.
Когда они будут готовы, внутрь рамы вставляют перекладины и наверх кладут треугольники. В них точно по размерам дрелью сверлят отверстия сквозь бруски. Затем туда вставляют длинные болты и плотно стягивают гайками. На этом прочная деревянная рама будет готова, которая долгое время прослужит на самодельном устройстве.
Металлическая рама для снегохода
Гораздо труднее заниматься строительством самоделок из металла. Здесь нужны специальные инструменты и приспособления, которые могут быть не у каждого. Потребуются значительные затраты, чтобы их приобрести или взять в аренду. Однако эта постройка будет намного прочней и долговечней конструкции из дерева. Здесь потребуются:
- Сварочный аппарат.
- Электроды.
- Маска.
- Болгарка.
- Гаечные ключи.
- Пассатижи.
- Молоток.
Кроме того, для постройки металлической рамы понадобятся более прочные материалы. Их обязательно придётся покупать в магазине, так как сегодня они больше нигде не встречаются. Да и строить новый самодельный снегоход из старых деталей не слишком хочется из-за плохой надёжности. Поэтому здесь будут использоваться только хорошие материалы:
- Металлические трубы.
- Железный уголок.
- Листовая сталь.
- Швеллер.
Как правило, прежде чем начинать строительство рамы нужно сделать простой чертёж. По его параметрам болгаркой нарезать трубы и с помощью сварочного аппарата соединить их в прямоугольник. Внутри рамы вставить ещё пару перегородок из уголка для установки двигателя и гусеницы. Если сделать их из швеллера, то конструкция получится гораздо прочнее и надёжнее в работе.
После этого от металлической трубы потребуется просто отрезать две небольшие втулки.
Снегоуборщик из триммера своими руками: пошаговая инструкция по самоделке
Снегоуборочная машина – важный помощник на участке. Ее можно сделать самостоятельно, используя для этого триммер. Рассмотрим самую простую схему изготовления снегоуборщика из мотокосы.
Не всякая коса подходит для самоделки. Маломощные электрические инструменты с изогнутой штангой не справятся с задачами по очистке снега. Лучше для этих целей использовать производительные модели, имеющие ровную штангу.
Устройство самого снегоочистителя несложное. Он работает со специальной насадкой (крыльчаткой с лопастями), которую устанавливают вместо ножа. Крыльчатку можно изготовить самостоятельно и лучше поместить в металлический кожух, который делают из трубы большого размера или пивной бочки.
Снегоуборочная машина из триммера создается с использованием чертежей и соблюдением всех схем.
Мини-снегоход своими руками
Уважаемые посетители сайта «Самоделкин друг» из представленного материала вы узнаете, как самостоятельно собрать снегоход с двигателем от мотоблока. Предоставлены пошаговые фото сборки и видео с обкатки мини-снегохода. Каждый заядлый рыбак и охотник прекрасно знает, что зимой по рыхлому снегу передвигаться на лыжах не очень то удобно, а когда необходимо преодолеть расстояние в несколько десятков километров до заимки, зимовья, охотничей избушки, или до водоёма, то здесь вообще «труба)) Для преодоления больших расстояний необходим снегоход, но цены на заводские машины не по карману простому человеку, опять же ремонт и запчасти обойдутся в копеечку. Так что делаем сами, своими руками)) Для постройки снегохода автор использовал двигатель от мотоблока «Lifan» мощностью 9 л/с, данный вид двигателя сегодня очень популярен среди самодельщиков, куда только их не ставят) трактора, вездеходы, лодки итд. ДВС расположен в задней части машины прямо над гусеницей, кстати она сделана из половины БУРАНовской гусеницы разрезанной пополам.
Снегоход шустро бегает по рыхлому снегу везя двух человек и полозья с поклажей, что в очередной раз доказывает что дело Кулибина живет и развивается)
Материалы
- ДВС «Lifan» 9 л/с
- проф-труба «квадрат»
- гусеница «Буран»
- цепь
- звезда
- болты, гайки и тд
Инструменты
- сварочный инвертор
- УШМ
- дрель
- набор гаечных ключей
Сборка снегохода своими руками.
Данный снегоход очень компактный и при этом быстро собирается и разбирается, буквально за 5 минут. Так же легко помещается в разобранном виде в багажное отделение легкового автомобиля.
Гусеница сделана из БУРАНовской гусеницы разрезанной пополам, дополнительно установлены алюминиевые траки сделанные из профиля.
Вот такой снегоход)
Велик с мотором от бензопилы
На велосипед можно установить двигатель от бензопилы. На таком веломопеде можно разгоняться до 50 км/ч, а иногда и выше. С целью конструирования этого транспорта необходим двигатель от бензопилы с мощностью, равной 1,5 – 2 л.с. – этого хватит для развития скорости в 30 – 40 км/ч. Понятно, что нужна емкость, используемая в качестве бензопака, не обойтись без проводов и переключателя для подключения зажигания двигателя и т.д.
Велосипед из бензопилы расходует минимальное количество топлива.
Как из бензопилы сделать мотор для велосипеда, подробно рассказывают разные мастера в интернете.
Культиватор
Для моторизованной обработки почвы производят культиватор из триммера
своими руками. Мощность мотора должна составлять не менее 2 л. с. При использовании электротриммера надо запастись удлинителем, чтобы производственный процесс происходил по всему участку.
Главная деталь мотокультиватора — насадка. В качестве нее подходят прутья садовых вил длиной 10-15 см.
Изготовление детали происходит так:
- сначала необходимо расплющить зубья на ширину 1 см;
- на наждачном круге заточить режущие лезвия для фрез;
- из металлического листа электролобзиком вырезать кольцо диаметром 10 см;
- заготовку отшлифовать;
- приварить 3 фрезы к стальному кругу на равном расстоянии друг от друга.
При наличии обратной резьбы насадку накручивают, предварительно сварив трубу с гайкой.
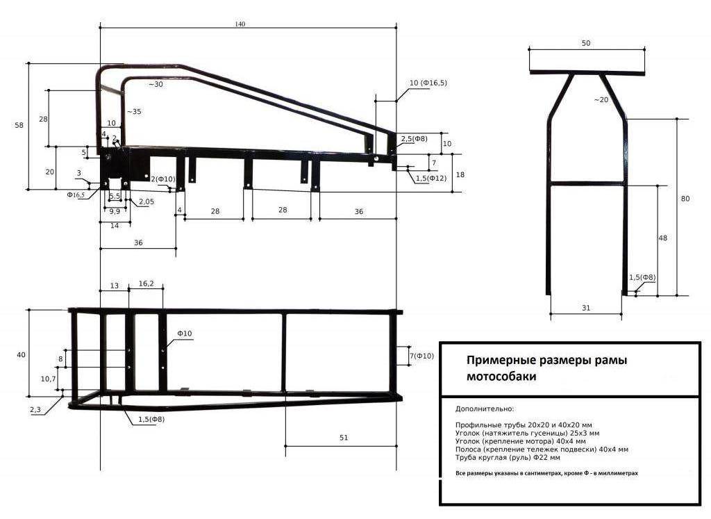
Этапы сборки
Работу по созданию своими руками самодельной мотособаки разделим на 4 основных этапа. Первый и последний этапы поменять местами нельзя. 2-й и 3-й этапы можно осуществлять параллельно.
1-й этап. Планирование
Для начала стоит представить, с какими характеристиками и внешним видом должна получиться ваша мотособака. Используя готовые схемы и чертежи, корректируя их под себя, составьте список планируемых материалов. Этот этап поможет избежать ошибок и ускорит создание машины. Порядок действий и предложенные материалы могут варьироваться. Следует оценить наличие инструмента и места для работы. Закупить недостающее. На момент начала сборки все материалы и инструменты должны быть в наличии и под рукой. При наличии помощника за 3-4 дня у вас будет готовая собственная мотособака.
2-й этап. Каркас
- Собирается основа, скелет машины. Он держит все элементы и испытывает нагрузку и постоянные вибрации. Он не должен прогнуться, швы сварки должны быть надежны. От этого будет зависеть, насколько безопасна ваша собранная своими руками мотособака. Схема и чертежи вашей машины не обязательно должны быть точными. При наличии всех элементов длина, ширина каркаса, места сварки креплений могут подгоняться на месте.
- Из труб варится модуль для мотособаки своими руками с помощью сварки. Прямоугольник из профиля 20 х 40 мм. Стойки крепления руля делаются из такого же профиля, но с большей толщиной стенки. Стоит учитывать, что мотособака будет испытывать постоянные вибрации, поэтому модуль либо варим изначально из более прочных труб, либо усиливаем конструкцию в последующем. Для руля используется профильная труба 20 х 20 мм и круглая труба примерно такого же диаметра. То место, где руль крепится к раме, необходимо усилить. На это место идет постоянное давление плюс вибрация. Следует также усилить жесткость рамы, например, приварив поперечные перекладины из профиля 20 х 40 мм или другого. Также рекомендуется внутрь трубы вставлять трубу меньшего диаметра. Привариваем пластины крепления ведущего вала к раме. Делаем крепление двигателя из уголка 40 х 40 мм или иного размера. Отрезаем 6-8 кусков и привариваем их в переднюю часть рамы. Привариваем крепления подвески мотобуксировщика.
- Варим защитный каркас двигателя необходимой формы и привариваем его к раме. Привариваем отрезки, соединяющие каркас со стойками крепления руля. Зачищаем неровные края.
- Чтобы избежать коррозии металла, сваренную раму окрашиваем. После полного высыхания краски обшиваем стальным (алюминиевым) листом с помощью заклепок.
- Высверливаем отверстия для болтов, чтобы закрепить двигатель.

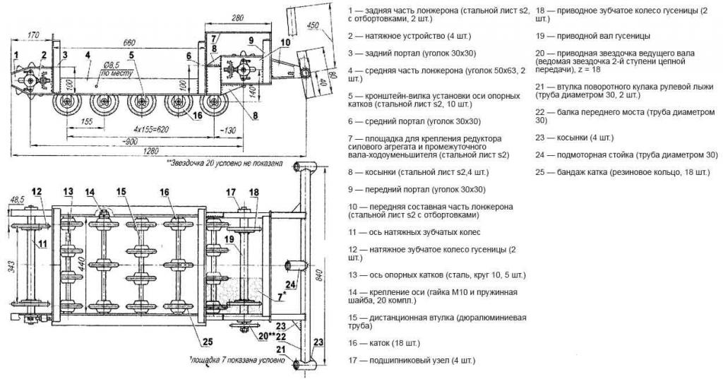
3-й этап. Сборка ходовой части
- Кладем гусеницу, внутрь нее вставляем ведущий вал с насаженными корпусными подшипниками, потом вставляем балансир (задний вал). Сверху ставим раму. Раму закрепляем с помощью болтов и гаек. Сразу используйте контргайки. Ставим натяжители гусениц. Существуют различные натяжители гусениц, есть возможность выбрать наиболее подходящие, исходя из вашей конструкции.
- Между валами для опоры гусеницы ставим катки (катковые тележки) или склизы. Используются также комбинированные варианты. Склизы можно поставить заводские из пластика. Можно сделать деревянные из прочной древесины. Закрепляем их.
- Закрепляем брызговик, фаркоп, натягиваем гусеницу.
Посмотрите ниже схемы и чертежи мотособаки. Своими руками собирается эта техника, но при этом такой вариант очень практичный и надежный. Очень интересно здесь использование катков в ходовой части. Это повышает цену производства, но приравнивает вашу мотособаку к снегоходу по проходимости.

4-й этап. Завершение сборки
- Закрепляем двигатель четырьмя болтами.
- Устанавливаем звезды, цепь, натяжитель цепи (им может быть башмак цепи ГРМ).
- Ставим руль с рычагом газа и кнопкой выключения мотора.
- Подключаем все элементы. Прикручиваем защиту двигателя. Готово.
Постройка рамы
Прежде чем приступить к строительству снегохода, вначале потребуется выбрать материал. Проще всего самодельную раму сделать из деревянных брусков. Получится очень лёгкая и довольно прочная конструкция, которая считается самой дешёвой и наиболее простой в изготовлении. Для этого понадобятся:
- Деревянные бруски.
- Листовое железо.
- Ножницы по металлу.
- Дрель и свёрла.
- Ручная пила.
- Болты и гайки.

Преимущества строительства такой конструкции бесспорны. В случае поломки деревянную модель будет нетрудно отремонтировать вдали от населённого пункта. В лесу легко найти подручный материал, который можно применить для ремонта. Но главным достоинством считается то, что этот снегоход редко проваливается под лёд и не тонет в воде.
Деревянная конструкция
Известно, что бруски и доски из древесины не обладают особой прочностью в местах их

соединения. Поэтому перед началом строительства необходимо сделать дополнительные уголки из металла. Для этого берут листовое железо и вырезают ножницами квадратные пластины по ширине брусков. В них рулеткой размечают места под болты, а затем дрелью сверлят четыре отверстия. После этого пластины сгибают пополам строго под 90 градусов. Это будут отличные приспособления для прочного скрепления деревянных брусков в углах самодельной рамы.
Обычно приступают к строительству после того, как сделают чертёж с точными размерами. И уже по ним ножовкой отрезают четыре бруска, а в углах дрелью сверлят отверстия для болтов. Затем их кладут на ровную поверхность пола в виде правильного прямоугольника. К местам соединения прикладывают металлические уголки, вставляют болты и накрепко затягивают гайками.
Для крепления двигателя и гусеницы на раму устанавливают дополнительно ещё две перекладины из брусков с отверстиями под болты на концах. Но перед этим вначале изготавливают уголки для крепления. Их вырезают из листов железа треугольной формы и сверлят отверстия в углах.
Лучше сразу сделать восемь штук и поставить их сверху и снизу. Тогда крепления окажутся более прочными и надёжными в работе.
Когда они будут готовы, внутрь рамы вставляют перекладины и наверх кладут треугольники. В них точно по размерам дрелью сверлят отверстия сквозь бруски. Затем туда вставляют длинные болты и плотно стягивают гайками. На этом прочная деревянная рама будет готова, которая долгое время прослужит на самодельном устройстве.
Металлическая рама для снегохода
Гораздо труднее заниматься строительством самоделок из металла. Здесь нужны специальные инструменты и приспособления, которые могут быть не у каждого. Потребуются значительные затраты, чтобы их приобрести или взять в аренду. Однако эта постройка будет намного прочней и долговечней конструкции из дерева. Здесь потребуются:
Сварочный аппарат.
- Электроды.
- Маска.
- Болгарка.
- Гаечные ключи.
- Пассатижи.
- Молоток.
Кроме того, для постройки металлической рамы понадобятся более прочные материалы. Их обязательно придётся покупать в магазине, так как сегодня они больше нигде не встречаются. Да и строить новый самодельный снегоход из старых деталей не слишком хочется из-за плохой надёжности. Поэтому здесь будут использоваться только хорошие материалы:
- Металлические трубы.
- Железный уголок.
- Листовая сталь.
- Швеллер.

После этого от металлической трубы потребуется просто отрезать две небольшие втулки.
А потом приварить их к углам передней части, куда будут вставляться поворотные опоры для лыж. Металлическая рама готова и можно приступать к постройке, а также установке основных агрегатов и узлов.
Что такое мотобуксировщик – описание и назначение
Под мотособакой понимают мини-снегоход (мини-снегоболотоход) с двигателем. Данное транспортное средство представляет собой сцепку из гусеничного буксировщика с санями либо санями-волокушами. Водитель мотособаки садится в сани, туда же кладут любой груз. У некоторых моделей «собаки» есть специальная грузовая площадка на тягаче. Мощность двигателя обычно составляет от 6 л. с. до 13 л. с., скорость равна 30-40 км/час. Тормоз у мотособаки отсутствует, о чем всегда надо помнить водителю.

Мотобуксировщики популярны среди рыбаков, охотников. Также их можно применять в сельском и лесном хозяйстве для перевозки небольших грузов. В отличие от колесной техники, лыжи на санях мотособаки позволяют передвигаться даже по рыхлому снегу, зимнему бездорожью, чем транспортное средство напоминает снегоход. Разница лишь в расположении водителя: они сидит вне платформы с мотором, что уменьшает вес мотособаки, увеличивает проходимость. Также плюсами в сравнении со снегоходом являются простота конструкции, более низкая цена.
На мотособаках можно передвигаться по замерзшей поверхности водоема – озера, реки. Они идеальны для любителей подледной ловли и были разработаны специально для них. Машину легко перевезти в автомобиле, используя чехол, выгрузить на берегу, после применять по назначению. На мотособаке возможно перевозить грузы по пересеченной местности, изобилующей спусками, подъемами. Используют технику для поездок летом, весной, осенью по болотистым полянам, лесным дорожкам.
Почему стоит изготовить мотособаку – причины
И покупная техника, и самоделка отличаются неприхотливостью, компактностью, не требуют много места для перевозки, хранения. Но некоторые охотники предпочитают делать мотособаки самостоятельно, из подручных средств. Основная причина – экономичность: самодельный вариант обойдется на порядок дешевле. Не более стоимости самого простого буксировщика из Китая можно соорудить также надежный, прочный буксировщик-толкач.
У многих моделей мотособак, особенно китайской сборки, есть масса недочетов в конструкции. Например, гусеница может часто забиваться снегом, что связано с промахами разработчиков. Прочие возможные проблемы – вставание мотособаки на дыбы, зарывание в слишком глубоком снегу, забрасывание снега в сани. Всех этих неприятностей можно избежать, если делать транспортное средство самому.

При переднем расположении мотора мотособаки, которое практически всегда планируется в самодельных моделях, работа машины будет намного эффективнее. Вот очевидные плюсы:
- экономия топлива и общее удешевление конструкции;
- более высокая скорость движения;
- возможность сделать дополнительные отсеки для снастей.
Технология проведения работ

Если будет изготавливаться мотособака своими руками, схема и чертежи данного устройства помогут вам в этом. Как только все элементы рамы будут обладать необходимой формой, их можно будет зафиксировать между собой с помощью сварочных прихватов. Данные манипуляции необходимы для того, чтобы при образовании дефектов на этапе сборки от них можно было легко избавиться. После того как все погрешности были устранены, раму можно окончательно зафиксировать сваркой. Чертежи мотособаки своими руками с легкостью можно будет подготовить без помощи специалистов. Для монтажа двигателя на раму превосходно подойдут заготовки, выполненные из листовой стали. Они делаются по заблаговременно подогнанному шаблону, последний из которых выполняется из картона. Он должен соответствовать размерам рамы. Заготовки фиксируются на двигателе, только после полученная конструкция должна быть прикреплена к системе каркаса с помощью сварочных прихватов. На следующем этапе двигатель нужно отсоединить от заготовки, окончательно зафиксировав его на раме.
Рекомендации профессионалов
Нужно помнить о том, что самодельная снегоходная машина является транспортным средством. Специалисты рекомендуют не забывать об этом. Даже если имеется многолетний опыт управления мотоблоком, после переделки к новой машине надо привыкнуть. Нельзя сразу на большой скорости осваивать снежные сугробы и неизвестную местность. Маневренность снегохода за счет жесткой сцепки с санями уменьшается. Увеличивается опасность переворачивания на сложной трассе.
Детей катают на небольшой скорости по ровной местности
Непременно в санях захотят прокатиться дети. Нельзя лишать такого удовольствия, но вновь надо вспомнить о технике безопасности. Трассу выбирают ровную, едут на малой скорости. Можно сделать поезд из нескольких волокуш.
На видео снегоход самоделка своими руками из мотоблока:
Преимущества самодельного снегохода из мотоблока
Внешне самодельная машина менее привлекательная, по сравнению с аналогом заводского изготовления. Однако можно найти много положительных сторон. Одним из плюсов является тот факт, что снегоход делают под себя. То есть, хозяин четко знает, чего он хочет: перевозить грузы, ездить на рыбалку, в лес, заниматься другими делами.
Внешне самоделка не привлекательная, зато отвечает всем требованиям хозяина
Из других плюсов можно выделить следующие моменты:
- Покупать в хозяйство мотоблок и снегоход дорого. Для хранения двух машин понадобится место, причем каждая из них будет простаивать в не сезон. Дешевле обзавестись одним мотоблоком. Использовать его зимой вместо снегохода, а летом по прямому назначению.
- Самодельная конструкция не потребует больших затрат. Многие запчасти подойдут б/у от легкового автомобиля. На металлоломе можно дешево купить обрезки труб, швеллера и другого металла.
- Снегоход можно использовать даже летом. Гусеничная машина имеет хорошую проходимость по грязи.
Снегоход с двигателем от мотоблока на камерах
Мотоблок практически не придется переделывать, если модернизировать родные колеса. Потребуются спущенные камеры от грузовика. Их по пять штук натягивают на каждое колесо, фиксируют цепями. Камеры накачивают. За счет фиксации цепями их форма становится наподобие ромашки с сегментами в виде эллипса. Новые колеса хорошо пройдут по глубокому снегу.
Для стяжки камер используют цепи, металлические обручи, полосы транспортерной ленты
Еще один колесный снегоход из мотоблока можно соорудить, надев на камеры вместо цепей стальные обручи. Снаружи их оснащают траками. Перемычки приваривают из металлических пластин. Высота трака около 2-3 см. После накачивания камер металлические обручи надежно зафиксируются на колесах.
Снегоход из мотоблока своими руками — лучшие самодельные устройства и механизмы. 110 фото и видео постройки снегохода
Без мотоблока в современности обходится мало какой огородник и садовод. В теплое время очень часто и густо используется такая техника в обычных ежедневных делах и никогда не простаивает. А вот в зимний период применение мотоблоку найти сложновато и это говорит о том, что машина просто будет стоять без дела.

Мастера домашних переделок придумали использование для мотоблока и в холода. По снегу не хочется передвигаться своим ходом, тем более, что кое-где снег достигает непроходимых объемов.

Именно поэтому из мотоблока на зиму делают снегоход. Это польза и для владельца и для самого оборудования, так как мотоблок не простаивает.

На фото снегохода из мотоблока, сделанного своими руками хорошо видно, что каждый делает такую модель, как ему хочется. Для тех, кто решил создать такой полезный агрегат потребуется выбрать, какой именно вариант ему ближе.

В нашей статье мы рассмотрим некоторые важные моменты для создания снегохода.

Краткое содержимое обзора:
Устройство самодельного мотоблочного снегохода
Это востребованное изобретение, которое можно сделать самостоятельно при наличии качественных деталей. Мотоблок берется частично (отдельные детали) или используется полностью. Если вы решили использовать его не в полной комплектации, на него необходимо приварить несущую раму с задней осью, рулевой вилкой и колесами. Наиболее трудным этапом при этом становится преобразование рабочего вала мотоблока в приводную шестерню.
Мотор можно расположить в задней части конструкции.
Перед началом самостоятельного изготовления конструкции начертите чертеж, соберите весь необходимый материал, подготовьте инструмент, и можно приступать. Конструкция достаточно несложная и с ней справится любой человек, для этого не обязательны техническое образование и какие-то навыки.
Если вы не заканчивали инженерный факультет и вам сложно составить чертеж, воспользуйтесь нашим.
Чертеж простой рамы для самодельного снегохода
На чертеже рама, которая вам потребуется при изготовлении снегохода.
Если все сделать правильно согласно чертежу, у вас получится снегоход на основе гусянки.
Чертеж рамы cнегохода на гусеницах
Особенности конструктивного плана
Самый простой вариант снегохода состоит из части, которая ведет и той, которую везет первая. Вторая часть состоит из места сидения, амортизаторов, рулевой части и полозьев, благодаря которым и движется эта часть. Вторая часть устроена намного сложнее, так как она несет в себе все элементы, приводящие снегоход в движение.

В первую очередь во второй части необходимо правильно предусмотреть силовой агрегат, то есть сам мотор. Так же важна рама, на которой будет все обустроено и привод.

Схемы и чертежи снегохода из мотоблока своими руками необходимо сделать заранее, а найти необходимый вариант можно в сети или в различного рода литературе.

Для начала перед составлением чертежа определите цели, с которыми будет использован снегоход. После чертежей потребуется подобрать детали, а по возможности некоторые сделать собственными руками.
Мотосани – что и с чем
Но для начала стоит разобраться, что такое мотосани и для чего они нужны. Мотосани – средство передвижения и транспортировки груза в заснеженных условиях. В основном они представляют собой очень маленький снегоход с колесом. Мотор используют либо от скутера, либо от снегохода.
Для управления имеется рукоять, на которой установлена тормозная система и рычаг подачи топлива. Сиденье небольшое, рассчитанное на одного человека. В движение приводится небольшим колесом с очень шипастой резиной или маленькой гусеницей. Для комфортного передвижения по снегу устанавливаются лыжи.
Вообще, изготовление мотосаней самим – не такой сложный процесс, как может показаться вначале. Самоделки только поначалу кажутся сложными. Достаточно иметь начальные знания о том, как устроены моторы и научиться (или попросить кого-нибудь) сварке.
Что еще можно сделать из триммера
Самодельный мотосамокат — транспортное средство для передвижения на небольшие расстояния по тротуарам и парковым дорожкам. Механизм развивает скорость до 40 км/ч, из-за колес небольшого размера имеет малую устойчивость, для больших нагрузок и перевозки грузов не предназначен.
Для сборки изделия подходит старый самокат, который механизируют:
- устанавливают ребра жесткости, используя для усиления рамы квадратный металлопрофиль;
- подбирают устойчивые и широкие колеса, например от садовой тележки;
- изготавливают редуктор, чтобы передавать мощность от двигателя на заднее колесо цепной передачей;
- устанавливают тормозные, газовые рукоятки и тросики.
Моторизованный самокат — хорошая техника, но необходимо помнить, что детям такую «игрушку» давать не стоит.
Уважаемые «Кулибины», поделитесь своим опытом: что самое сложное в создании самодельного агрегата?
Источник
Можно ли сделать гусеницы самому?
Это самый сложный элемент, для самостоятельного изготовления. Гусеницы машины играют решающую роль в том, какую скорость будет развивать агрегат, и какова будет сцепка с ледяным покрытием. Качественно сделанные кустарным способом гусеницы способны прослужить достаточно долгое время. Чаще всего для гусениц используют покрышки от автомобиля. Для начала нужно освободить покрышки от бортов, оставив лишь гибкую дорожку. Теперь нужно изготовить грунтозацепы. Для этого используют пластиковую трубу диаметром 4 см. Ее нужно распилить на части длинной 50 см, получившиеся заготовки распилить еще вдоль. Эти детали крепятся к покрышке болтами
Важно соблюсти одинаковый интервал крепления грунтозацепов, в противном случае гусеница будет соскакивать с катка. Оптимально будет крепить их на расстоянии 5 см друг от друга.
Аналогичным методом делают гусеницы
Для их изготовления нужно использовать транспортерную ленту, которую следует отрезать, сделав длину оптимальной для самодельного агрегата. Важно правильно и надежно сцепить обрезанную ленту. Для этого ее концы накладываются друг на друга на 5 см и фиксируются болтами.
Как вариант, для изготовления гусениц можно воспользоваться клиновыми ремнями. Они скрепляются грунтозацепами, образуя гусеницу с готовыми выемками под шестерню.
Делая гусеницы своими руками нужно учесть такой нюанс: чем больше площадь гусеницы, тем лучше аппарат будет проходить по сугробам, но в управлении будет хуже. В магазинах, готовые изделия чаще всего представлены в трех вариантах, со стандартными гусеницами, широкими гусеницами и сверхширокими.
Чтобы упростить себе задачу, вместо самостоятельного производства, можно приобрести гусеницы в магазине. Таким образом, вы получите возможность приобрести гусеницы подходящие под рельеф местности и условий перемещения.
Мотосани – что и с чем
Но для начала стоит разобраться, что такое мотосани и для чего они нужны. Мотосани – средство передвижения и транспортировки груза в заснеженных условиях. В основном они представляют собой очень маленький снегоход с колесом. Мотор используют либо от скутера, либо от снегохода.
Для управления имеется рукоять, на которой установлена тормозная система и рычаг подачи топлива. Сиденье небольшое, рассчитанное на одного человека. В движение приводится небольшим колесом с очень шипастой резиной или маленькой гусеницей. Для комфортного передвижения по снегу устанавливаются лыжи.
Вообще, изготовление мотосаней самим – не такой сложный процесс, как может показаться вначале. Самоделки только поначалу кажутся сложными. Достаточно иметь начальные знания о том, как устроены моторы и научиться (или попросить кого-нибудь) сварке.
Другие варианты гусеничного снегохода из мотоблока
В рассмотренном примере представлен снегоход на одной широкой гусенице. Такая модель считается лучшей проходимости по глубокому снегу и сложному рельефу местности. Однако существуют другие гусеничные самоделки-снегоходы из мотоблока, своими руками которые собирают из тракторных покрышек и других материалов.
Снегоход можно сделать с двумя гусеницами
Не менее популярны модели с двумя гусеницами, где использована та же транспортерная лента. Из нее делают саму основу и траки. Для этого нарезают полосы, крепят их к основе болтами или заклепками.
Если из тракторной шины вырезать протектор, готовое кольцо исполнит роль гусеницы. Ходовой частью снегохода используют колеса. На мотоблок их ставят из легкового авто. На колеса натягивают протектор с шины.





































